Background
The Komplett III is Effecta’s flagship range of wood pellet biomass boilers and the range has heat outputs of 20, 25 and 35kW.
Key Features
- 20, 25 or 35kW heat outputs.
- Long cleaning intervals.
- Built in hot water production.
- No accumulator tank required.
- Built in heating and pump controls.
- Weather compensated (optional light).
- Automatic self-cleaning of burner with Aero technology.
- Automatic self-cleaning of boiler.
- Built in electrical heater (not on light model).
- Scandinavian design.
Full Komplett III - No Need for Accumulator Tank
In addition, it has a built-in coil for instantaneous domestic hot water. This means the boilers can be fitted to work at their highest efficiency without the need for an accumulator tank.
This makes the Komplett III ideal for domestic Renewable Heat Incentive applications, where space is at a premium.
Komplett III also features an automatic shunt control system with weather compensation. in addition, it also has an electric back-up heater and a front mounted, intuitive graphic touch screen controller.
Komplett III Light
The Effecta Komplett III Light model is the ideal pellet boiler to feed an accumulator tank and for retrofitting to an existing S Plan system.
It is has all the benefits of the full Komplett III, although it does not produce hot water and doesn’t have a mounted shunt valve.
MCS Accredited and Ideal for the Domestic RHI
Effecta's products have all been carefully designed to be easy to use. Most, are self-cleaning, which results in minimal maintenance.
All boilers in the range below 45kW are MCS accredited, making them suitable for the Domestic Renewable Heat Incentive. They are tested and conform to all comparable and applicable European Standards.
See the certificates here;
Seriously Low Emissions
Accreditation into the MCS requires emissions below 30g/Gj Particulates (PM) and 150 g/Gj of Nitrogen Oxide (NOx). All 3 of the Effecta Komplett wood pellet boilers have emissions significantly below these limits. This makes the Effecta Komplett ideal for either Commercial or Domestic RHI projects.
Check out the RHI EC List to see Effecta's emissions certificates, or click on the link below.
| Boiler | PM | NOx |
|---|---|---|
|
Maximum Emissions |
30 g/GJ | 150 g/GJ |
| Effecta Boiler Emissions | ||
| Effecta Komplett III Range | 7 g/GJ | 99 g/GJ |
Automatic Cleaning
The boiler is equipped with automatic cleaning of both the convective air channels and the burner’s combustion parts as standard. Servicing and cleaning of the boiler is only required once every 15-25,000 kWh, which equates to only once or twice a year for a normal domestic household.
Intuitive Controller
The touch screen control panel is easy to use and displays temperatures, calculated to within a degree of efficiency. There is a built in weekly calendar which gives homeowners the option to schedule different heating schemes for different times of day and night.

Effecta Komplett III simplifies your wood pellet heating substantially, because it is very simple to view how the combustion is running with the assistance of a Lambda sensor in the flue gas channel.
Wood Fuel Delivery and Storage Options
The Effecta Komplett comes with a range of fuel storage options from a weekly store to a bulk store that can be filled by delivery truck through filler tubes.
Delivered as a Complete Unit
Both Effecta Komplett III and the Light model are delivered complete with casings and all electrical wiring. This keeps installation and commissioning efficient and cost effective.
The built in shunt control of the Komplett III model has many options for the domestic market, including an indoor sensor and/or outdoor sensor with weather compensation.

The Best Wood Pellet Heating Available
Wood pellet heating is the fastest growing energy source in Europe for both domestic and commercial heating systems. Compared with fossil fuels, such as oil, gas or electricity our boilers are a convenient and effective, environmentally sustainable alternative.
Reducing pollution and fuel costs. When the right equipment is used, maintenance levels are no greater than those for oil boilers and overall running costs will be much lower.
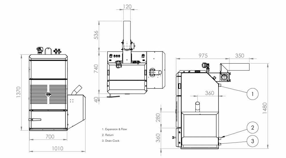
Technical Specifications
| Heat Output | kW | 20, 25, 35 |
| Height | mm | 1,370 |
| Depth Incl Smoke Outlet | mm | 975 |
| Width (incl burner) | mm | 700 (1,010) |
| Weight (excl burner) | kg | 295 (250) |
| Max Working Pressure | bar | 3 |
| Diameter of Elbow | mm | 120 |
| Smoke Outlet | mm | 150 x 150 |
| Floor to Centre Smoke Pipe | mm | 1,250 |
| Boiler Volume (light) | Litres | 1,283 (99) |
| Docking connections | Inch | 1 |
| Max Working Temperature | oC | 100 |
| Minimum Flue Area | mm | 125/ 125/ 150 |
| Depth of Grate | mm | 500 |
| Volume of Ash Compartment | Litres | 117 |
| Electrical Power Feed | VAC | 230/ 380 |
| Recommended Draft | hPa | 15 |
| Connection DHW (not on light model) | mm | 22 |
| Efficiency | % | Above 90 |
| Connection to Radiators (not on light model) | mm | 22 |
| Electrical Heater (not on light model) | kW | 3 + 6 |



