Small to Medium Scale Commercial Heating
The Sommerauer ECO Premium 50-150 Series range of biomass boilers deliver a combination of high heat output, optimum combustion, usability and easy maintenance.
This range is available to burn G20-G50 (pieces of between 20mm and 50mm) wood chips or ENPLus A1 or A2 wood pellets and heat outputs vary from 50 to 150kW with a single boiler. For a more powerful system, up to 6 multiple boilers can be installed in cascade up to 900kW.

The systems come with a 5 year warranty for peace of mind.
High Efficiency Combustion
The ECO Premium 50 to 150kW offer some of the highest heating efficiencies available with combustion air controlled by an induced draft fan. Rapid heat transfer through the steel heat exchanger gives short heating times. High heating efficiencies ensure perfect combustion at temperatures in excess of 1,000oC.

A patented burner system and contra rotating grate drives the biomass boiler range's high heating efficiencies, prevents the build-up of clinker and ensures that fuel of a varying quality can be burned.
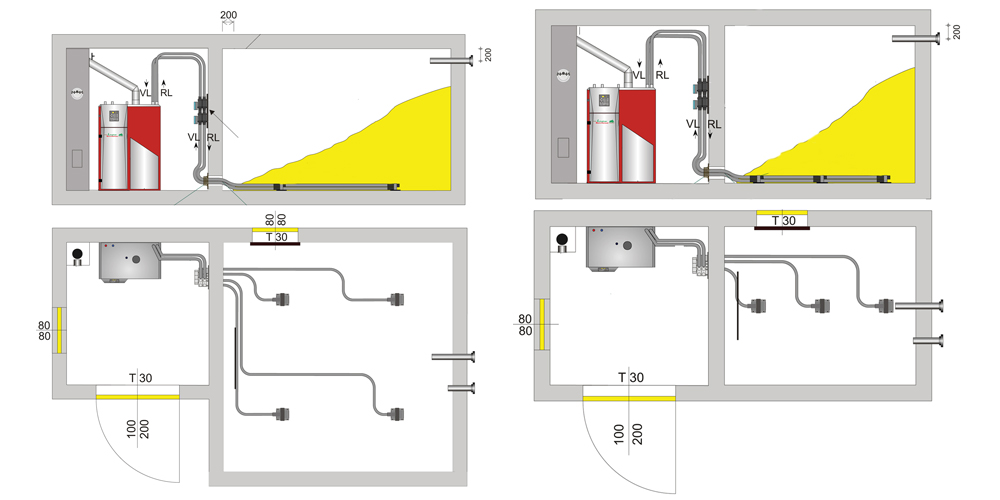
Wood Chip Fuel Delivery Systems

The Sommerauer range of wood chip systems offers huge flexibility in terms of fuel store location and fuel delivery system design.

We can also provide a range of different solutions relating to fuel store location, sizing and fuel delivery for wood chips based on single agitator diameters of up to 6m.

Further flexibility is given to the installation as the wood chip fuel delivery system being able to be connected to the left or right hand side of the boiler. This makes the SL50/150 suitable for a wide range of sites, locations and projects.

The fuel delivery system for wood chips feature a two piece auger channel, with lengths up to 15m and a separate auger box lid for easy maintenance. The auger comes in one solid piece, making it robust without multiple points of weakness.

Multiple agitators can be installed on a single system. This enables larger wood chip fuel stores to be constructed, minimising fills and enabling cost-effective bulk-buying or contract-chipping of large quantities of wood directly into a fuel store.
Wood Pellet Fuel Delivery Systems

Wood pellets are delivered into the biomass boiler by vacuum tube with lengths of 800-1,200mm. The fuel store for wood pellets can be integrated onto the boiler, custom-built, prefabricated or constructed underground.

We can provide a range of different solutions relating to fuel store location, sizing and fuel delivery, so get in touch to discuss your project's requirements.
Automatic Heat Exchanger Cleaning
Four rows of vertical cylinders make up the steel heat exchanger.

Inside each cylinder is a sprung turbulator which is in constant motion to keep the surface of the heat exchanger clean from efficiency reducing deposits. Ensuring the heat produced through combustion is efficiently and rapidly transferred to water with minimal energy losses is key to driving combustion efficiencies of above 90%.
Ease of Use
The electronic touch screen control panel is based on a sleek, modern, modular design and allows the easy control of 16 individual heating circuits.

Dependable
The ECO Premium is reliable, safe to use and built to last. Heavy duty, direct drive bevelled gear boxes feature hard-wearing silicon carbide coated ball bearings and there are no chains to break or snap.

An induced draft fan generates negative pressure in the combustion chamber and ensures the highest levels of reliability and safety. Protection from burn back is provided for in the auger motor drive which closes in case of a system shutdown. Robust silicon carbide tiles inside the firebox are more resistant to wear than conventional fire bricks.
Under the weight of a full fuel store, the discharge auger control sensor stops the agitator disc from rotating which minimises power consumption and energy use.
Low Volumes of Ash
Very little ash is produced to the volume of fuel used. The ash is transferred into two large and easily removable drawers. Automatic ash removal into a large external container is available as an optional extra. For example;
- A 50kW system will use approximately 14 tonnes of wood pellets, which will generate approximately 140kg of ash a year.
- A 110kW system will use approximately 39 tonnes of wood chips, which will generate approximately 390kg of ash a year.
- A 150kW system will use approximately 53 tonnes of wood chips, which will generate approximately 530kg of ash a year.

Ash from a biomass boiler can be used as fertiliser as it is very high in nitrates.
Technical Specifications
| 50/150 Biomass Boiler System | 
 | 50 | 65 | 80 | 110 | 150 | 
|---|---|---|---|---|---|---|
| Maximum Heat Output | kW | 50 | 65 | 80 | 110 | 150 | 
| Minimum Heat Output | kW | 12.4 | 12.4 | 21.5 | 23.7 | 41.9 | 
| Min. Combustion Efficiency | % | 91.9 | 93.1 | 91.7 | 91.3 | 91.8 | 
| Max. Combustion Efficiency | % | 92.1 | 93.5 | 93.0 | 93.7 | 93.8 | 
| Width | mm | 770 | 770 | 870 | 870 | 1,050 | 
| Depth | mm | 1,050 | 1,050 | 1,265 | 1,265 | 1,465 | 
| Height | mm | 1,430 | 1,530 | 1,520 | 1,620 | 1,810 | 
| Flow & Return Diameter | mm | 40 | 40 | 40 | 40 | 40 | 
| Flue Connection Diameter | mm | 180 | 200 | 200 | 200 | 250 | 
| Flue Connection Height | mm | 650 | 650 | 650 | 650 | 650 | 
| Boiler Weight (Assembled) | kg | 675 | 740 | 920 | 980 | 1,405 | 
| Auger Weight | kg | 82 | 82 | 83 | 83 | 85 | 
| Water Content | Ltr | 110 | 116 | 120 | 190 | 340 | 
| Power Consumption | A/ V | 16/ 400 | 16/ 400 | 16/ 400 | 16/ 400 | 16/ 400 | 
All of these key features are backed up by the peace of mind that comes from a 5 year warranty. 
 
 
 
 
 
 
 
 
 
 
 
 
 
 
 
 
 
 
 
 
 
 

